Soita edullisille hinnoille
+1 (888) 385-846586 arvostelua
Alkaen
$118108 Grange Road Mt Eden, Auckland, 1024, Uusi-Seelanti
Varauspalvelu:
+1 (888) 385-846586 arvostelua
1/27

Ilmainen yksityinen pysäköinti
Vain aikuisille
Ilmainen wifi
Suoratoistopalvelu (kuten Netflix)
Aurinkoterassi
Yksityinen sisäänkäynti
Paikoitus paikan päällä
Terassi
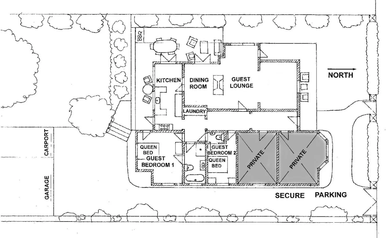
The Grange is a charming bed and breakfast in Auckland's Mt Eden district, just 2,4 mailia from the city center. Located at 108 Grange Road, Mt Eden, New Zealand, this B&B includes breakfast with every stay. Prices start from $118, and the property has earned 86 reviews.
Facilities include private parking (free) and on-site parking (free), free Wifi, and a streaming service (like Netflix), plus an adults-only policy and a private entrance. Additional amenities include a terrace, soundproof rooms, a kitchenette with kitchenware, non-smoking rooms, a garden view, a garden, a sun deck, a patio, a balcony, and barbecue facilities, along with a bathtub and free toiletries.
Airport shuttle and golf course access are available for an extra charge. The setting offers a garden and patio space to enjoy the outdoors, a sun deck for sunny mornings, and inviting interiors with a private entrance and soundproofed rooms.
Set in Auckland’s Mt Eden district, the grounds unfold into a garden-friendly retreat with options to linger outdoors on a sun deck, terrace, patio, or balcony while taking in the greenery. A private entrance welcomes arrivals, and soundproofed interiors help ensure a peaceful stay. An adults-only policy helps preserve a calm, focused atmosphere for enjoying the surroundings.
Inside the Suite, 2 Bedrooms, 775 square feet of flexible living space accommodates up to four adults with two double beds. The suite is non-smoking and includes a kitchenette with kitchenware, a private entrance, and a bathroom featuring a bathtub and free toiletries, plus the added quiet of soundproofed rooms.
Practical comforts abound with free Wifi and a streaming service like Netflix for entertainment. Airport shuttle and golf course access are available for an extra charge. Accepted payment methods include Mastercard, Visa, Bankcard, Eftpos, UnionPay, and cash.
Lähimmät lentokentät
Auckland International Airport
9 mailiaIlmainen yksityinen pysäköinti
Vain aikuisille
Ilmainen wifi
Suoratoistopalvelu (kuten Netflix)
Aurinkoterassi
Yksityinen sisäänkäynti
Paikoitus paikan päällä
Terassi
Äänieristetyt huoneet
Keittiö
Savuttomat huoneet
Patio
Keittiövälineet
Puutarhanäkymä
Keittokomero
Piknikalue
Puutarha
Ilmaiset hygieniatuotteet
Kylpyamme
Grilli
Parveke
Äänieristetty

Näytä 5 kuvaa
Sviitti, 2 Makuuhuonetta
Oma Kylpyhuone
Mikroaaltouuni
Litteä näyttö -TV
Jääkaappi
x4
Lisätiedot
This spacious suite includes 1 living room, 2 separate bedrooms and 1 bathroom with a walk-in shower and free toiletries. Guests will find a stovetop, a refrigerator, a dishwasher and kitchenware in the kitchen. The suite also features a barbecue. The suite offers a washing machine, a private entrance, soundproof walls, a flat-screen TV with streaming services, as well as garden views. The unit has 2 beds.
9.9
86 arvosteluaArviointien kategoriat
Puhtaus
Mukavuus
Sijainti
Tilat
Henkilökunta
Rahoille vastinetta
WiFi-laatu
Nähtävyydet
Mt. Eden
0,6 mailiaAuckland Town Hall
2,1 mailiaOne Tree Hill
2,1 mailiaPonsonby
2,4 mailiaViaduct Harbour
2,5 mailiaParnell
2,8 mailiaAuckland Ferry Terminal
2,8 mailiaSilo Park
2,8 mailiaMt. Victoria Reserve (Takarunga)
4,6 mailiaNorth Head Historic Reserve (Maungauika)
4,9 mailiaWaitakere Ranges
8,9 mailiaKumeu Wine Country
11,6 mailiaPiha Beach
16,5 mailiaManukau Heads Lighthouse
16,6 mailiaMuriwai Beach
18,5 mailiaNähtävyydet
Mt. Eden
0,6 mailiaAuckland Town Hall
2,1 mailiaOne Tree Hill
2,1 mailiaPonsonby
2,4 mailiaViaduct Harbour
2,5 mailiaParnell
2,8 mailiaAuckland Ferry Terminal
2,8 mailiaSilo Park
2,8 mailiaMt. Victoria Reserve (Takarunga)
4,6 mailiaNorth Head Historic Reserve (Maungauika)
4,9 mailiaWaitakere Ranges
8,9 mailiaKumeu Wine Country
11,6 mailiaPiha Beach
16,5 mailiaManukau Heads Lighthouse
16,6 mailiaMuriwai Beach
18,5 mailiaLentokentät
Auckland International Airport
9 mailiaIlmainen yksityinen pysäköinti
Vain aikuisille
Ilmainen wifi
Suoratoistopalvelu (kuten Netflix)
Aurinkoterassi
Yksityinen sisäänkäynti
Paikoitus paikan päällä
Terassi
Äänieristetyt huoneet
Keittiö
Savuttomat huoneet
Patio
Keittiövälineet
Puutarhanäkymä
Keittokomero
Piknikalue
Puutarha
Ilmaiset hygieniatuotteet
Kylpyamme
Grilli
Parveke
Äänieristetty
Aktiviteetit
Golfkenttä
Esteettömyys
Koko yksikkö sijaitsee pohjakerroksessa
Fyysinen etäisyys
Käteismaksuton maksu mahdollinen
Huoneen mukavuudet
Kuivausteline vaatteille
Pistorasia sängyn vieressä
Silitysrauta
Tuuletin
Vaateteline
Internet
Ilmainen wifi
Keittiö
Astianpesukone
Jaettu keittiö
Jääkaappi
Kahvikone
Keittiö
Keittiövälineet
Keittokomero
Kuivaaja
Leivänpaahdin
Liesi
Mikroaaltouuni
Pyykinpesukone
Ruokapöytä
Siivoustuotteet
Sähkökannu
Uuni
Kylpyhuone
Hiustenkuivaaja
Ilmaiset hygieniatuotteet
Kylpyamme
Kylpyamme tai suihku
Oma Kylpyhuone
Pyyhkeet
Suihku
Vieras-WC
WC
WC-paperi
Liikenne
Joukkoliikenteen liput
Lentokenttäkuljetus
Liiketoimintatilat
Faksi/Kopiointi
Makuuhuone
Herätyskello
Vaatekaappi tai komero
Vuodevaatteet
Media & teknologia
Litteä näyttö -TV
Puhelin
Radio
Suoratoistopalvelu (kuten Netflix)
Tietokone
TV
Näkymä
Puutarhanäkymä
Oleskelualue
Istuma-alue
Ruokailualue
Sohva
Työpöytä
Palvelut
Herätyspalvelu
Herätyspalvelu/Herätyskello
Pysäköinti
Ilmainen yksityinen pysäköinti
Paikoitus paikan päällä
Ruoka & Juoma
Erikoisruokavaliot (pyynnöstä)
Tee-/kahvinkeitin
Ruoka- ja juomaturvallisuus
Aamiaismukaanastiat
Turvallisesti suojattu ruoan toimitus
Siivouspalvelut
Pesula
Turvallisuus & valvonta
24h turvallisuus
Avainkäyttö
Hiilimonoksidin ilmaisin
Sammuttimet
Savuhälyttimet
Turvahälytin
Turvallisuusominaisuudet
Ensiapupakkauksia saatavilla
Pääsy terveydenhuollon ammattilaisille
Ulkotilat
Aurinkoterassi
Grillausalue
Grilli
Parveke
Patio
Piknikalue
Puutarha
Terassi
Ulkokalusteet
Ulkona ruokailualue
Vastaanottopalvelut
Lasku saatavilla
Matkatavarasäilytys
Pikasisään-/uloskirjautuminen
Yksityinen sisään-/uloskirjautuminen
Yleiset
Lämmitys
Matotettu
Merkitty tupakointialue
Parketti- tai puulattiat
Savuton kiinteistö
Savuttomat huoneet
Vain aikuisille
Yhdistettävät huoneet saatavilla
Yksityinen sisäänkäynti
Äänieristetty
Äänieristetyt huoneet
Yleiset alueet
Jaettu oleskelu-/TV-alue
Alkaen 14:00
21:00 asti
Vieraat ovat velvollisia näyttämään kuvallisen henkilötodistuksen ja luottokortin sisäänkirjautumisen yhteydessä
Alkaen 07:00
11:00 asti
Pets are not allowed.
WiFi is available in all areas and is free of charge.
The minimum age for check-in is 18
Come and go whenever you want
Free private parking is available on site (reservation is not needed).
Varaukset
Soita meille parhaan päivähinnan saamiseksi
+1 (888) 385-8465Lastenkäytännöt
Children not allowed.
Vauvasängyn ja lisävuoteen käytännöt
No capacity for extra beds or cribs.
Käteinen
Mastercard,
Visa,
Cash only,
Bankcard,
Eftpos,
UnionPay
Tämä majoituspaikka hyväksyy käteisen.
What's the check-in and check-out schedule at The Grange?
Guests at The Grange can check in between 14.00 and 21.00. Check-out time is set for 11.00.
Is vehicle parking offered by The Grange?
Yes, The Grange hotel provides free private on-site parking. No reservation is required for parking.
What's the nightly rate at The Grange?
The Grange has a starting price of $118 for accommodations. Do remember that actual rates might deviate based on the room and date. Insert your dates for a detailed price view.
Which room categories can I book at The Grange?
At The Grange hotel, guests can enjoy the comfort and space of the Two-Bedroom Suite. With a generous size of 775 sqft, this suite can accommodate up to 4 adults. The suite features 2 double beds and is a non-smoking room.
Where can guests find entertainment in The Grange?
Guests at The Grange can make the most of their time by enjoying the various leisure amenities provided by the hotel. They can relax and unwind at the hotel's sun deck, where they can soak up the sun and enjoy the beautiful views. The hotel also features a golf course, offering guests the opportunity to indulge in their favorite sport while enjoying their stay. Additionally, guests can take advantage of the hotel's barbecue facilities, where they can enjoy a delicious meal while spending quality time with friends and family. These amenities cater to the needs and preferences of adults, creating an ambiance of tranquility and exclusivity. Whether guests are looking to relax, play golf, or have a BBQ gathering, The Grange has a range of leisure activities to accommodate their desires.
Does The Grange accept credit cards and cash payments?
Yes, The Grange accepts cash payments as well as credit card payments. They accept Mastercard, Visa, Bankcard, Eftpos, and UnionPay.

17 Amersham Way, East Tamaki, 2104, Uusi-Seelanti
10,3 mailia matka nykyisestä hotellista
Erittäin hyvä
2 466 arvostelua
Alkaen

14 Airpark Drive, Auckland Airport, Auckland, 2022, Uusi-Seelanti
7,3 mailia matka nykyisestä hotellista
Erittäin hyvä
4 903 arvostelua
Alkaen

Auckland International Airport Ray Emery Drive, Auckland, 2022, Uusi-Seelanti
8,6 mailia matka nykyisestä hotellista
Erittäin hyvä
10 607 arvostelua
Alkaen

83 Delamore Drive, Owhanake Bay, Omiha, 1081, Uusi-Seelanti
15,3 mailia matka nykyisestä hotellista
Erinomainen
42 arvostelua
Alkaen

1 Victoria Road, Devonport, Auckland, 0647, Uusi-Seelanti
4,2 mailia matka nykyisestä hotellista
Hyvä
732 arvostelua
Alkaen

72-112 Greenlane East, Auckland, 1001, Uusi-Seelanti
2,6 mailia matka nykyisestä hotellista
Hyvä
1 308 arvostelua
Alkaen

150 Mckenzie Road, Mangere, Auckland, 2150, Uusi-Seelanti
6,1 mailia matka nykyisestä hotellista
Hyvä
2 203 arvostelua
Alkaen

Cloghfin Place 6, Auckland, 2019, Uusi-Seelanti
11,3 mailia matka nykyisestä hotellista
Erittäin hyvä
1 273 arvostelua
Alkaen

477 Great South Road, East Tamaki, 2025, Uusi-Seelanti
9,4 mailia matka nykyisestä hotellista
Miellyttävä
332 arvostelua
Alkaen
Valikoidut hotellit
Valikoidut hotellit